Adresse
Den Jyske Håndværkerskole
Ellemosevej 25
8370 Hadsten
Kontakt
Tlf.: 89 370 100
djh@djhhadsten.dk
Telefontider
Mandag-torsdag 8.00-15.00
Fredag: 8.00-13.00
Åbningstider i Elevinfo
Mandag-torsdag kl. 7:30-23.00.
Fredag kl. 7.30-14.00.

Medarbejdere
Køleafdelingen






















Kvalitet, Udvikling og Kommunikation









Rengøring








Tømrerafdelingen


























Studieinfo



















Elafdelingen
















































Elevinfo









EUX



















Køkkenet






















Plastafdelingen











Løn & HR




Økonomi






Bygningstjenesten





Klaus Amstrup Jensen
Pedel







Chefgruppen






IT




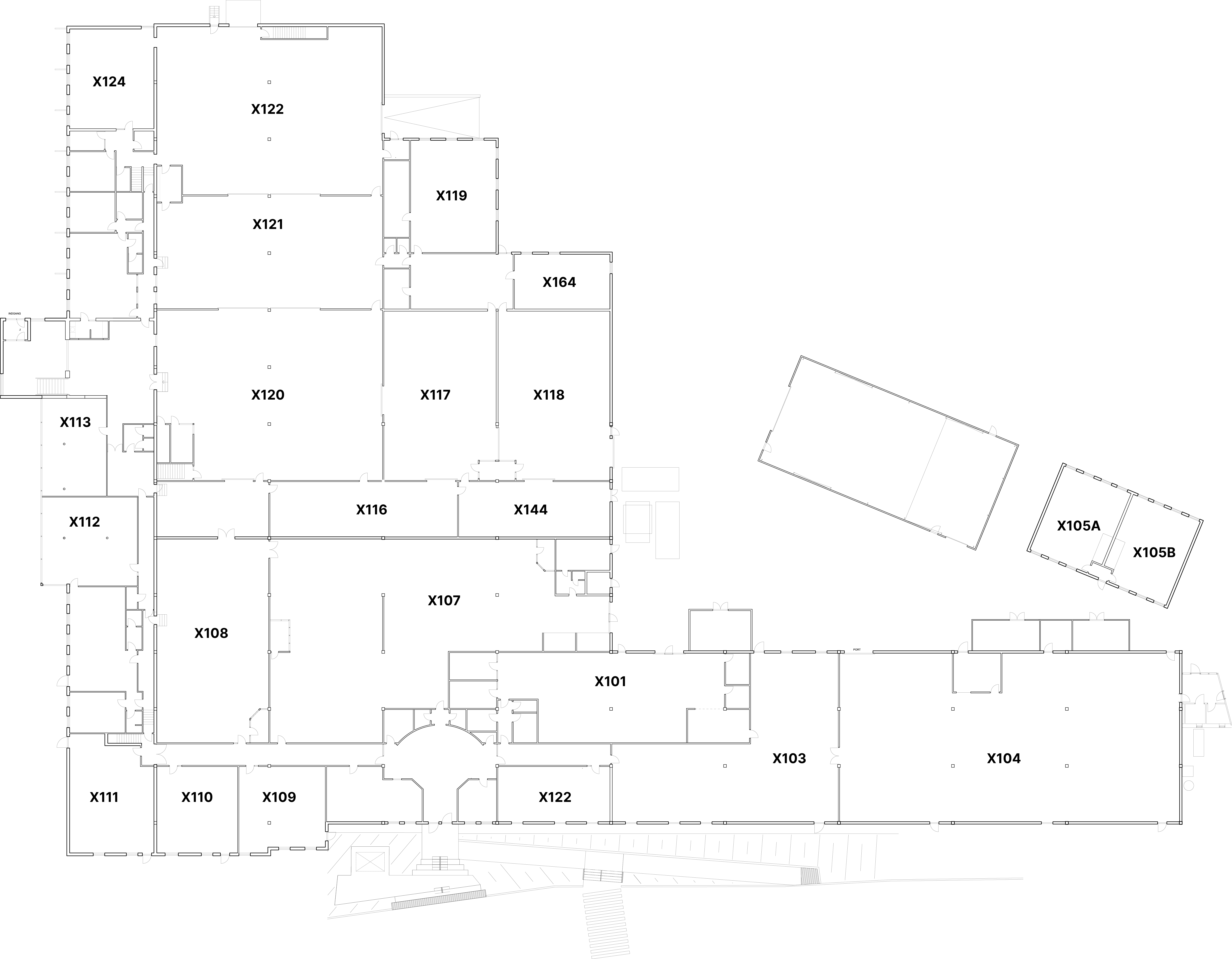
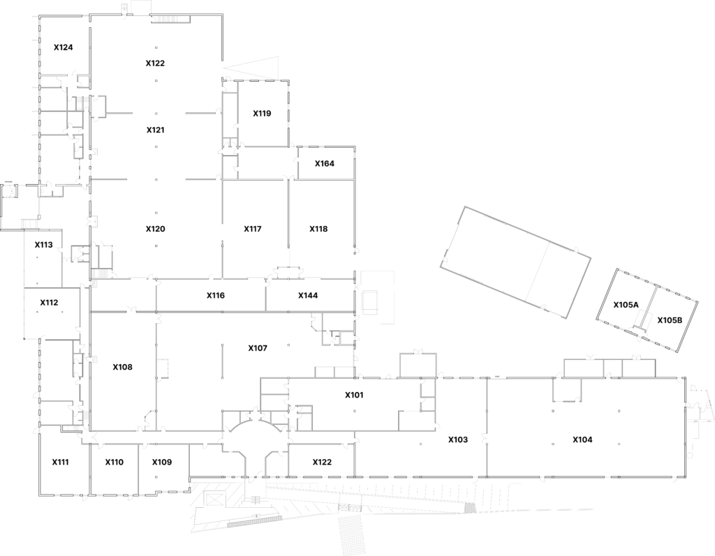
FIND VEJ
Her finder du ressourcer, så du let kan finde til DJH, finde den korrekte bygning, og det rigtige lokale.
Klik på kortene for at se dem i fuld størrelse
Filtre
uddannelser ()
events ()
DJH og organisation ()
Livet på DJH ()
Mester og lærling ()
page ()
Ingen resultater







